Zateplení domu: Na co myslet?

Zateplení domu: Na co myslet?

Kdy je nejlepší čas na zateplení domu? A na co nezapomenout? V dnešním článku se na zateplení podíváme opravdu zblízka a ukážeme si, jak přesně byste měli postupovat. Pojďme na to!

Zateplení svépomocí, nebo stavební firma?

Zateplení svépomocí není nemožné, doporučujeme ale dobře zvážit, jestli by nebylo lepší přizvat stavební firmu. Nekvalitně provedené zateplení jsou vyhozené peníze – izolace bude horší, než předpokládáte, a tak nepřinese očekávanou úsporu za topení. Zkuste proto objektivně zhodnotit, jestli na to vůbec stačíte, třeba na základě postupu v tomto článku.

Ideální počasí na zateplení: ani zima, ani horko

Zateplení si také dobře naplánujte. Vzpomenout si na něj až v zimě je pozdě – v chladném počasí bude dlouho zasychat tmel i fasáda a může dojít k popraskání.

Ani letní horka nejsou ideální. V příliš vysokých teplotách vám bude materiál při nanášení fasády zasychat příliš rychle. Nejvhodnější je teplota okolo 20 ˚C, tedy počasí asi v druhé polovině září.

Volba izolačního materiálu

Další podstatný krok je volba vhodného izolantu. V praxi máte dvě nejčastější možnosti: minerální vatu a polystyren.

Desky z minerální vaty mají oproti polystyrenu lepší paropropustnost, zabraňují šíření požáru a lépe izolují zvuk. Naproti tomu polystyren je lehčí a levnější. Díky nízké hmotnosti polystyrenu můžete použít i silnější desky – obecně můžeme říct, že silnější deska znamená lepší izolaci. Jakou tloušťku desek použít budete vědět z připravené dokumentace. Nejčastěji se používají desky v tloušťce 12, 14 a 16 cm.

Příprava podkladu

Samotné zateplení začíná přípravou stěn stavby, kterou se chystáte zateplovat. Podklad, na který budete lepit izolační desky, musí být suchý a čistý, povrch rovný bez výčnělků a opadávajících částí.

Nezapomeňte také na penetraci. Použít můžete například Primer 3296, který vám zajistí dokonalé spojení izolace a podkladu. Nařeďte ho s vodou v poměru 1 : 2.

Základní akrylový nátěr Primer 3296 ve vodní disperzi se silnou schopností penetrace, určený pro účinné hloubkové zpevnění a ukotvení prachových částic na povrchu.

U novostavby přípravu podkladu nebudete muset řešit. Při zateplování starších budov ale můžete narazit na vlhký podklad nebo opadávající fasádu. Než se pustíte do zateplování, pečlivě podklad připravte. Může se stát, že si příprava podkladu vyžádá víc času, proto se do ní pusťte s předstihem alespoň 14 dní.

Založení systému

Podklad máme připravený, pojďme zateplovat! Nejprve připevněte soklové lišty (tedy zakládací profily) zatloukacími hmoždinkami. Rovnost lišt zkontrolujte vodováhou. Případné mezery mezi lištami a podkladem utěsněte tmelem.

Jednotlivé desky budete skládat takzvaně na vazbu (podobně, jako se skládají cihly). Proto si odměřte, jak uříznout desku, kterou buď začnete, nebo ji položíte nad první desku. Postupujte odspoda nahoru.

Připevnění desek

Izolační desky budete připevňovat lepicím tmelem Mapetherm AR2, který musí být vhodný pro daný typ desky. Tmel naneste na obvod desky a na tři body její plochy, měl by zabírat alespoň 40 % plochy desky.

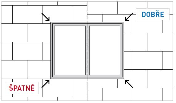
Vyměřte si, jak budou desky navazovat na otvory, tedy okna a dveře. Spára mezi deskami by se neměla dotýkat rohu otvoru, musí od ní být minimálně 10 cm. Proto budou mít desky u rohů otvorů tvar ležatého L.

Po přilepení desky počkejte alespoň 48 hodin a pak desky ukotvěte talířovými hmoždinkami. Nejprve vyvrtejte otvor, do kterého hmoždinku vložíte. Hmoždinku po vložení zatlučte tak, aby nevyčnívala z roviny tvořené deskami. Hmoždinky můžete také zapustit pod povrch desek a zakrýt izolační krytkou, díky tomu nebudou ve výsledné fasádě vidět a zateplení bude lépe izolovat. Na zapuštění ale budete potřebovat speciální nástroj - frézku.

Místa, kde jste použili hmoždinky, zastěrkujte.

Základní vrstva

Zkontrolujte, že mezi deskami nevznikly mezery. Pokud ano, vyplňte je přířezy z izolačního materiálu. Na rohy použijte zakončovací rohové profily s integrovanou síťovinou – nejprve naneste vrstvu tmelu, do ní potom síťovinu zatlačte. Stejně postupujte i u otvorů, kde výztuž připevněte po obvodu otvoru, u rohů bude výztuž orientovaná kolmo na úhlopříčky otvoru.

Naneste alespoň 2mm vyrovnávací vrstvu tmelu, na ni poté pomocí ozubeného hladítka naneste další vrstvu, do které vtlačíte výztužnou síťovinu. Jednotlivé pásy síťoviny by se měly alespoň na 10 cm překrývat. Po zatuhnutí naneste druhou vrstvu vyrovnávacího tmelu v tloušťce 2mm a povrch uhlaďte.

Po přestávce, která by měla trvat zhruba 5 dnů, můžete pokračovat s povrchovou úpravou, tedy s nanesením samotné fasády.

---

Zateplení domu je náročný projekt, u kterého spíše uvítáte pomoc zkušeného odborníka. Po přečtení našeho dnešního článku alespoň víte, jak by měl vypadat správný postup a budete se moci rozhodnout pro řemeslníka, který vám doporučí jen to nejlepší. Podívejte se do naší databáze řemeslníků a najděte toho svého.